











Immeuble de rapport à rénover – PERMIS ACCORDÉ pour 7 unités
Description :
Situé à proximité immédiate du centre-ville et de toutes les commodités, cet immeuble de rapport se compose de 7 logements, représentant une excellente opportunité pour les investisseurs.
Le rez-de-chaussée propose un studio de 52,82 m² ainsi qu’un appartement 1 chambre avec terrasse de 65 m².
Au 1er étage, vous trouverez deux appartements 1 chambre de 69 m² et 57 m².
Le 2e étage dispose également de deux appartements 1 chambre de 69 m² et 57 m².
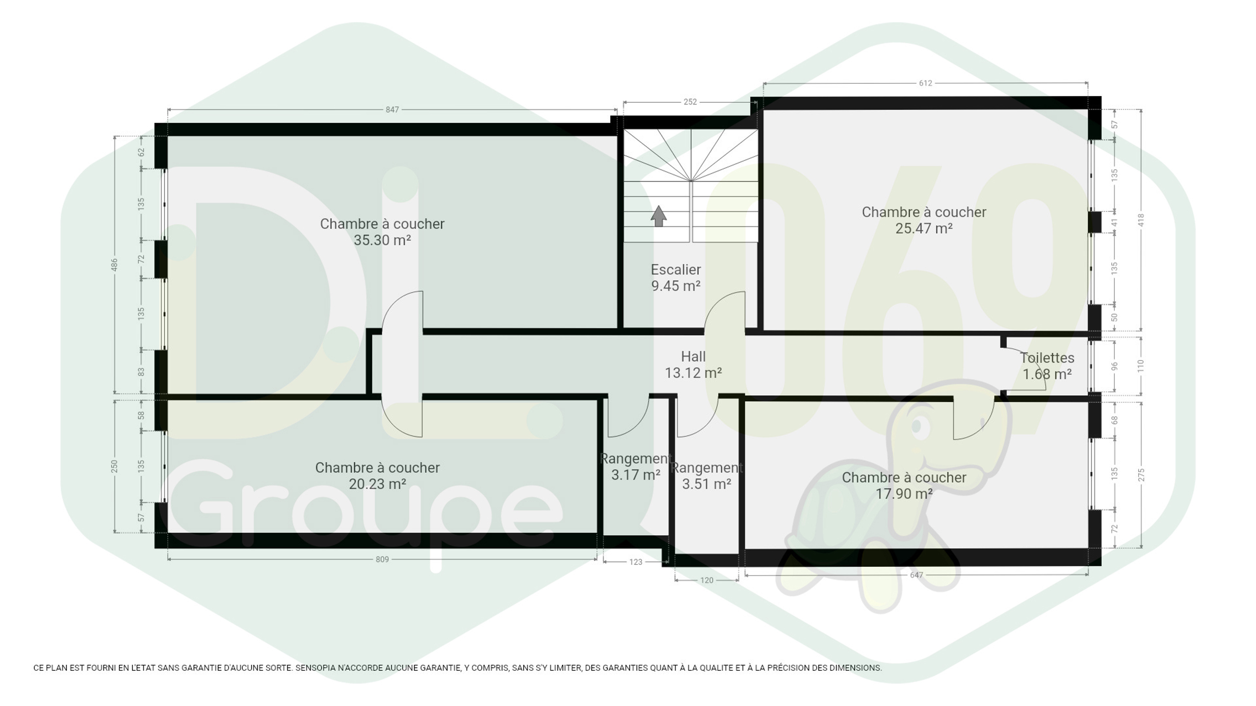
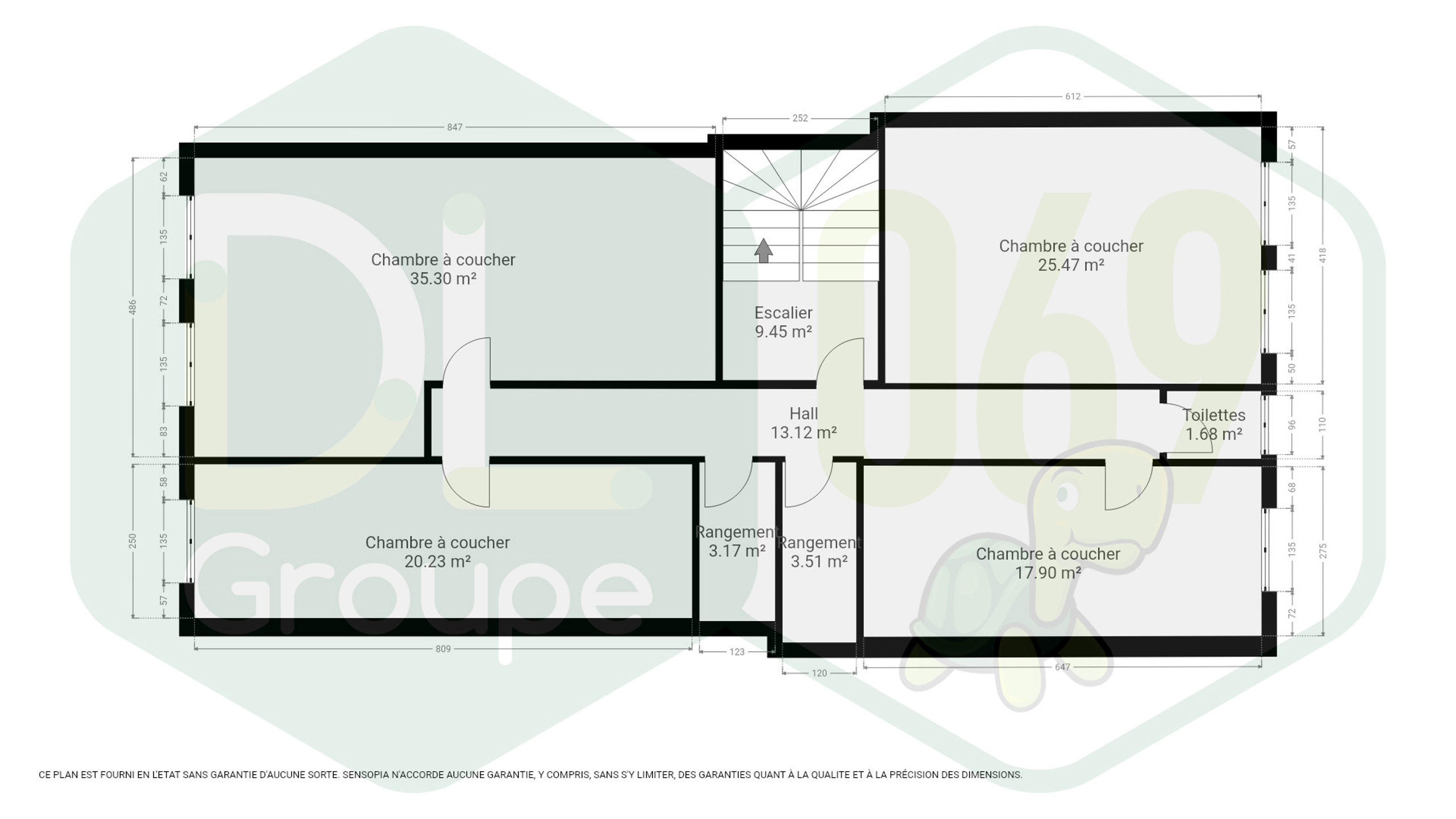
Le 3e étage offre un grenier aménageable de 129 m², idéal pour créer un appartement 3 chambres supplémentaire.
Une belle cave complète l`ensemble, offrant un espace de stockage pratique.
Caractéristiques :
Immeuble à rénover, toiture en tuiles, châssis en double vitrage, compteurs séparés, PERMIS ACCORDÉ pour 7 logements.
Points forts :
Situation stratégique proche du centre, rendement locatif potentiel élevé.
Plus d’infos sur notre site Internet : www.dlgroupe.com
Publicité à caractère non contractuel et ne constituant pas une offre.
Les propriétaires se réservent le droit de décision, d’acceptation ou non sur toute(s) offre(s) soumise(s) pour leur bien.
centre ville,
Boutiques : oui
Transport en commun : oui
Ecoles : oui
Salle de Sport : oui
Autoroute : oui