











Découvrez cette spacieuse villa idéalement situé au coeur de Dottignies !
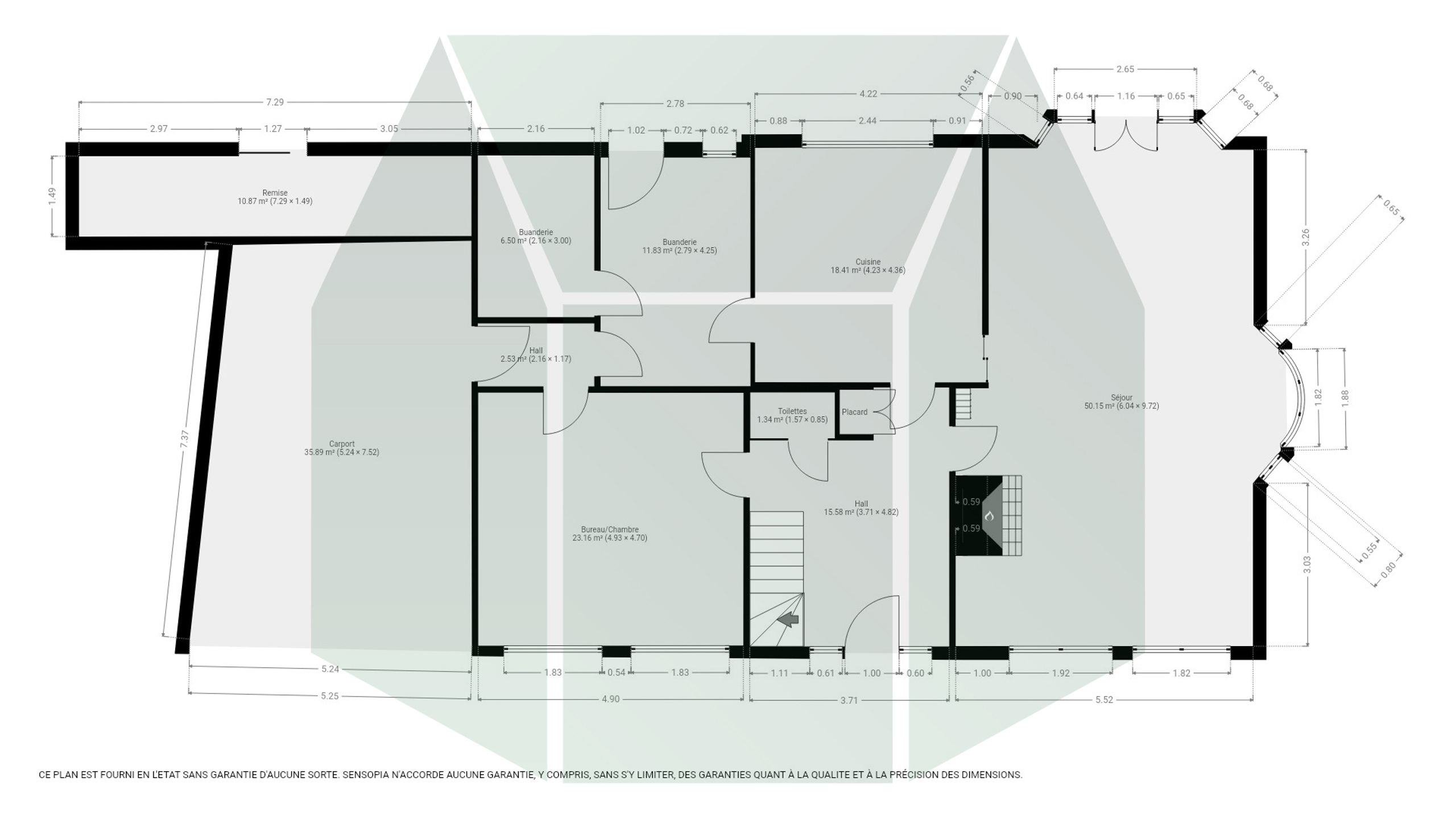
Au rez: Vaste hall d`entrée avec escalier apparent, vestiaire, WC suspendu avec lave-mains, spacieux bureau ou chambre de 23m² avec accès indépendant (idéal pour profession libérale), superbe living lumineux de 50m² avec salon et salle à manger offrant une magnifique cheminée en marbre avec insert au gaz, belle et grande cuisine équipée avec plan central offrant un coin repas composée d`un four intégré, taques vitro, hotte, lave-vaisselle, plan de travail en granit et double évier inox, grande buanderie et cellier séparé, carport attenant à l`habitation, belle terrasse carrelée et magnifique jardin arboré avec pergola.
Au 1er étage : hall de nuit, WC suspendu, 3 magnifiques et spacieuses chambres dont 1 avec dressing fait sur mesure, 1 superbe salle de bains avec baignoire, douche et double meuble lavabo, pièce supplémentaire offrant un second dressing, grenier sur toute la longueur de l’habitation.
Caractéristiques : Construction robuste de 1999, chauffage central au gaz et insert gaz intégré dans une cheminée en marbre, châssis PVC double vitrage avec persiennes électriques partout, système d`alarme et vidéophonie, parquet partout au 1er étage, citerne d`eau de pluie (10 000L) avec groupe hydrophore raccordé sur les 2 WC, lave-linge, évier buanderie et robinet extérieur, 2 entrées séparées (1 en façade et 1 latéral), 17 panneaux photovoltaïques.
Possibilité d`acheter le terrain à batir attenant de +/- 1.041m² d`une valeur de 200.000€ !
Publicité à caractère non contractuel et ne constituant pas une offre.
Les propriétaires se réservent le droit de décision, d`acceptation ou non sur toute(s) offre(s) soumise(s) pour leur bien.
calme,
Boutiques : oui
Transport en commun : oui
Ecoles : oui
Salle de Sport : oui
Autoroute : oui
Du bâtiment : sud-est
Du jardin : sud ouest
De la terrasse : sud-est