










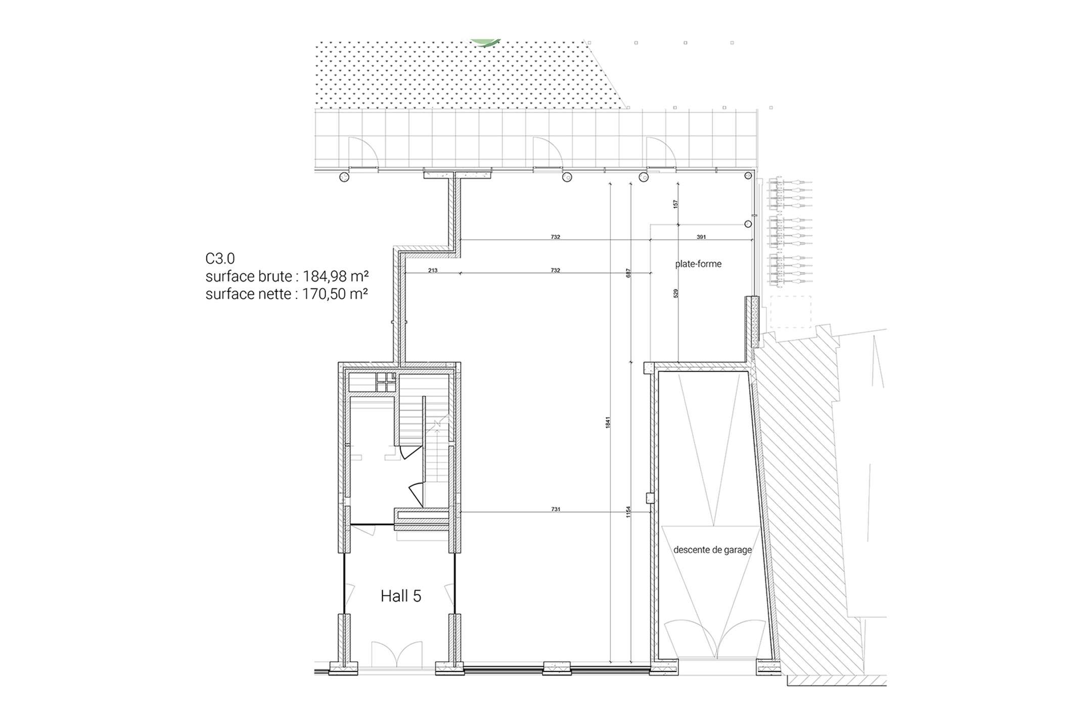
Surface commerciale de 185 m² (surface nette : 170 m²), au rez-de-chaussée de la Résidence Le Conservatoire, à deux pas de la Grand Place de Tournai
7,30 mètres de linéaire façade avec 2 vitrines
Possibilité d’acquérir des places de parking extérieures à l`arrière de la résidence au prix de 17.000 € HF / place
Livraison à l`acte
Prix affichés hors frais - Vente CASCO (gros œuvre fermé) sous régime TVA à 21 %
Surfaces brutes établies par l`architecte, l`entrepreneur ou le géomètre selon les cas
Renseignements et visite : Alexandra au +32 472 27 03 42
Publicité à caractère non contractuel et ne constituant pas une offre.
Les propriétaires se réservent le droit de décision, d`acceptation ou non sur toute(s) offre(s) soumise(s) pour leur bien
centre ville,
Boutiques : -
Transport en commun : -
Ecoles : -
Salle de Sport : -
Autoroute : -