











Maison 3 chambres avec jardin et garage à Herseaux
Prestations
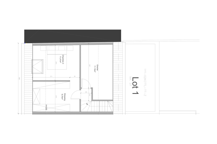
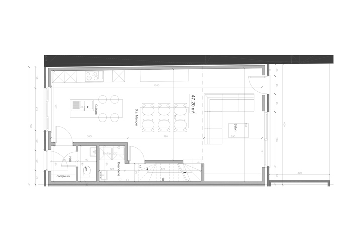
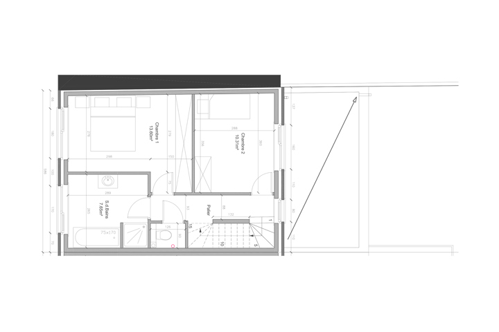
- Agencement : Au rez, hall d`entrée, WC séparé avec lave-mains, séjour avec espace cuisine (cuisine non comprise), buanderie. Au premier, 2 chambres, salle de bains avec douche et baignoire, meuble vasque et WC séparé. Combles, 1 chambre, espace dressing et coin grenier
- Espaces extérieurs : terrasse, portillon selon les lots et garage
- Confort et commodités : 5 panneaux solaires, accès au garage en pavés autobloquants
- Espaces verts : jardin clôturé non engazonné
Finitions
- Menuiseries : châssis PVC double-vitrage, portes intérieures prêtes à peindre, tablettes de fenêtre en marbre blanc ou en pierre bleue, escalier en hêtre
- Chauffage : chauffage central au gaz, chaudière, radiateurs
- Ventilation : VMC double flux
- Revêtements de sol : carrelage dans la pièce de vie et la salle de bain, parquet dans les chambres
Action Spéciale : 8.000 € HTVA offerts pour l’achat d’une cuisine chez Vervenne !
PEB visé : A
Livraison : 5 mois après la levée de la condition suspensive
Frais de raccordements compris dans le prix de vente
Prix affichés hors frais - Vente sous régime des droits d`enregistrement (12,5 %) sur le terrain, éligible à 3 % sous conditions, et de la TVA sur la construction (21 %), éligible à 6% sous conditions
Renseignements et visite : Alexandra au +32 472 27 03 42
Retrouvez toutes les informations sur ce projet sur notre site www.immoaplus.be
Les surfaces indiquées ne sont pas des surfaces habitables mais des surfaces brutes, selon le code de mesurage appliqué en Belgique
Publicité à caractère non contractuel et ne constituant pas une offre
Les propriétaires se réservent le droit de décision, d`acceptation ou non sur toute(s) offre(s) soumise(s) pour leur bien
,
:
:
:
:
:
: sud est
: sud-est