Appartement 3 chambres avec terrasse A vendre

Appartement Mouscron

255 200€

En quelques mots

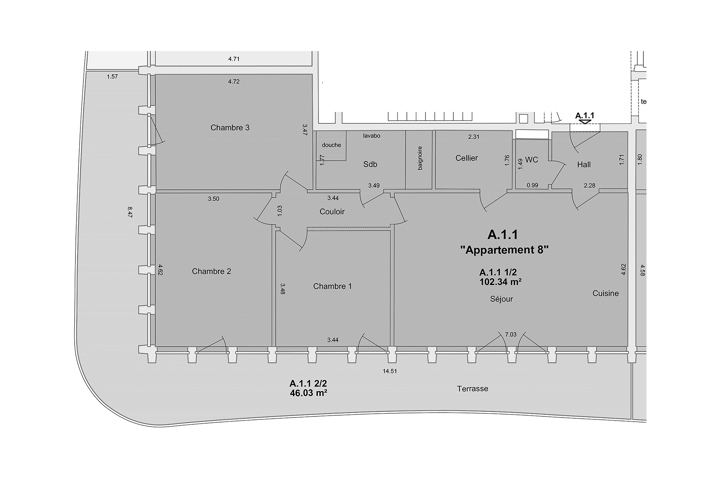
Appartement 3 chambres situé à proximité du centre-ville et de la gare.Prestations- Agencement : hall d`entrée avec emplacement pour vestiaire, wc suspendu séparé, séjour avec cuisine équipée ouverte donnant sur une belle terrasse, cellier, 3 chambres, salle de bain avec douche et baignoire et meuble vasque- Espaces extérieurs : terrasse avec dalles sur plots- Confort et commodités [..]
Appartement 3 chambres situé à proximité du centre-ville et de la gare.

Prestations
- Agencement
: hall d`entrée avec emplacement pour vestiaire, wc suspendu séparé, séjour avec cuisine équipée ouverte donnant sur une belle terrasse, cellier, 3 chambres, salle de bain avec douche et baignoire et meuble vasque
- Espaces extérieurs : terrasse avec dalles sur plots
- Confort et commodités : ascenseur

Finitions
- Menuiseries
: châssis alu à coupure thermique teintés avec double-vitrage, isolation thermique et phonique
- Chauffage : chauffage à air pulsé par chaudière à condensation collective, thermostat
- Ventilation : système de ventilation Type C
- Revêtements de sol : carrelage type parquet dans le hall, le séjour, la cuisine, les chambres, carrelage 60 x 60 cm dans la salle de bain et le WC, plinthes bois
- Sécurité : détecteur incendie, porte d’entrée coupe-feu

Deux places de parking intérieures et une cave comprises dans le prix

PEB B

Investisseurs >>> Actuellement loué 950 € / Mois

Livraison à l’acte

Prix affichés hors frais - Vente sous régime de la TVA sur la construction (21 %)

Renseignements et visite : Alexandra au +32 472 27 03 42

Retrouvez toutes les informations sur ce projet sur notre site www.immoaplus.be

Les surfaces indiquées ne sont pas des surfaces habitables mais des surfaces brutes, selon le code de mesurage appliqué en Belgique
Publicité à caractère non contractuel et ne constituant pas une offre
Les propriétaires se réservent le droit de décision, d`acceptation ou non sur toute(s) offre(s) soumise(s) pour leur bien
Lire plus

Situation

  • Adresse : Mouscron

En Vidéo

Détails

  • Ref : 4665003
  • Type : Appartement
  • Prix : 255 200€
  • Chambre(s) : 3
  • Etat général : Neuf
  • Salle de bain : 1
  • Garage(s): 0 + 1
  • Cuisine : équipée
  • Chauffage : air pulsé au gaz

  • Séjour de 33m2
  • Habitation de 101m2
  • 2 façades

Energies

  • Conso Spécifique 92 KwH/m².an
  • Conso théorique totale 10082 KwH/an
  • N° cert. 20230504007149
  • Electricité oui, conforme

A proximité

Environnement

central, central

Commodités

Boutiques : oui

Transport en commun : oui

Ecoles : oui

Salle de Sport : -

Autoroute : oui

Orientation

De la terrasse : sud-est

Envoyer à un ami

*Aucune information n'est enregistrée sur ce formulaire

  • Immo A+ Mouscron
Agence

Je veux visiter

Je suis déjà propriétaire d'un bien
Je reconnais avoir pris connaissance de la  politique de confidentialité et des conditions de respect de la Vie Privée

Vos coups de coeur