





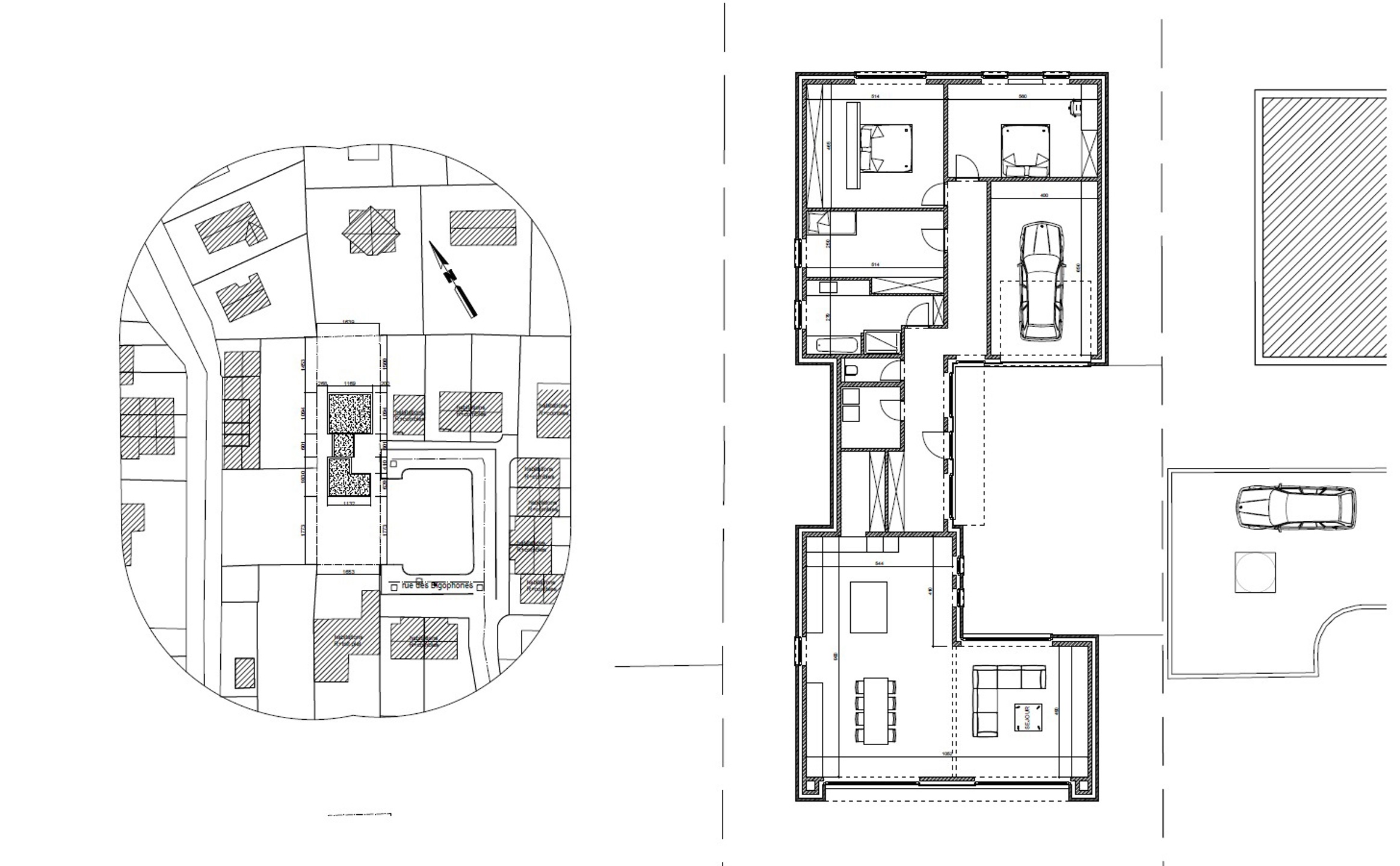
Nous vous proposons un terrain de 983 m², dans un petit clos résidentiel à l’abri des regards. Ce terrain d`une largeur de 17 mètres et une profondeur de 60 mètres, offre un cadre de vie calme et intime, idéal pour la construction d’une maison individuelle.
Il bénéficie d’un projet préalable réalisé par un architecte de la région, avec avis favorable de l’urbanisme pour la construction d`une villa cubique, ce qui vous permet de démarrer plus rapidement votre projet.
Situé dans un environnement paisible, ce terrain est néanmoins à proximité des commodités locales et des axes routiers principaux, vous garantissant une excellente accessibilité tout en préservant votre tranquillité.
Ne laissez pas passer cette belle opportunité de concrétiser votre projet de vie à Estaimpuis !
calme, résidentiel
Boutiques : oui
Transport en commun : oui
Ecoles : oui
Salle de Sport : -
Autoroute : oui
Du jardin : sud ouest