Villa récemment construite érigée sur 6500m² !A vendre

Villa Bernissart blaton

695 000€

En quelques mots

Située dans le village de Blaton, à Bernissart, cette villa tout juste construite est à vendre en l`état de gros oeuvre fermé.Elle est érigée sur une parcelle de 6.500m² exposée plein sud, et a été construite dans les règles de l`art avec des matériaux de qualité.Le rez-de-chaussée se compose d`un vaste salon/séjour avec cuisine ouverte de plus de 70m²; d`un bureau, d`une [..]
Située dans le village de Blaton, à Bernissart, cette villa tout juste construite est à vendre en l`état de gros oeuvre fermé.
Elle est érigée sur une parcelle de 6.500m² exposée plein sud, et a été construite dans les règles de l`art avec des matériaux de qualité.

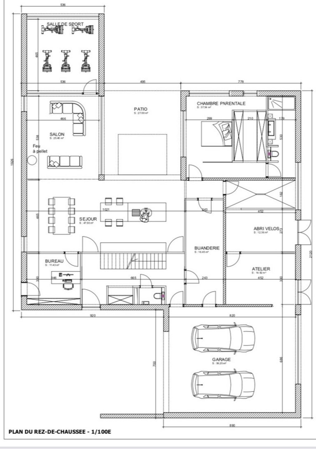
Le rez-de-chaussée se compose d`un vaste salon/séjour avec cuisine ouverte de plus de 70m²; d`un bureau, d`une salle de sport, d`une suite parentale avec emplacement dressing et salle de bain, une buanderie, un atelier et un double garage avec porte motorisée. Un salle de douche supplémentaire est prévue pour un projet piscine.

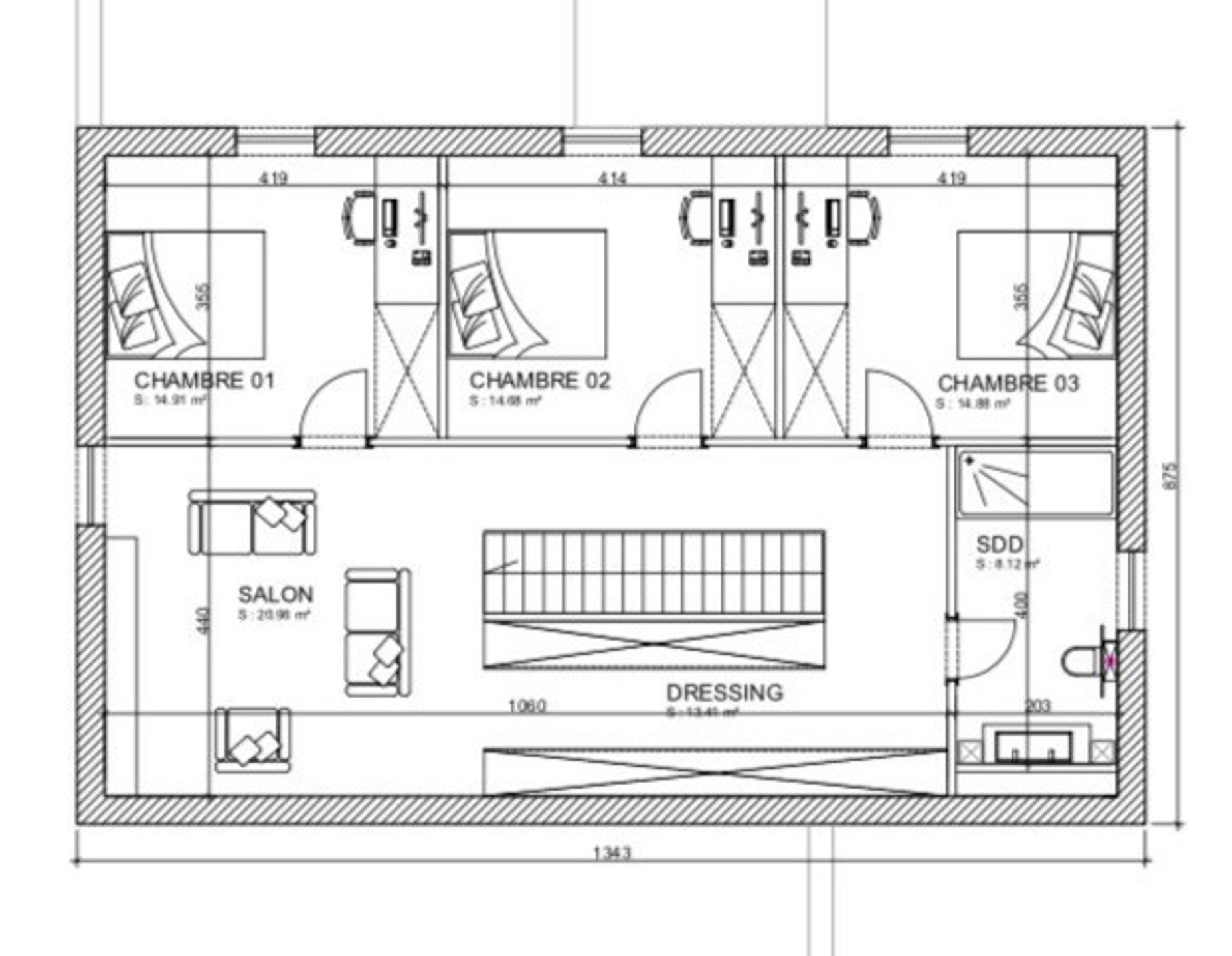
L`étage possède 3 chambres avec vue dégagée sur le jardin, une salle de douche, et un espace ouvert avec coin salon et dressing.

Caractéristiques : Châssis en aluminium double vitrage, citerne à gaz propane enterrée.

*** A vendre 695.000€ sous le régime des droits d`enregistrement ***
(Possibilité de vente sous régime TVA 21% au prix de 595.000€)
Lire plus

Situation

  • Adresse : Bernissart blaton

Détails

  • Ref : 7212085
  • Type : Maison/Villa
  • Prix : 695 000€
  • Chambre(s) : 4
  • Etat général : Neuf
  • Salle de bain : 3
  • Garage(s): 2 + 1
  • Cuisine : non-équipée
  • Chauffage : electrique

  • Habitation de 405m2
  • Terrain de 6480m2
  • Jardin de 6975m2
  • 4 façades

Energies

  • Conso théorique totale 8893 KwH/an
  • N° cert. 20250203-0003520283-RES-2
  • Electricité oui, conforme

A proximité

Environnement

villa, Vue dégagée

Commodités

Boutiques : -

Transport en commun : -

Ecoles : -

Salle de Sport : -

Autoroute : -

Orientation

Du bâtiment : sud-ouest

Envoyer à un ami

*Aucune information n'est enregistrée sur ce formulaire

  • Immo Emeraude Tournai
Agence emeraude

Je veux visiter

Je suis déjà propriétaire d'un bien
Je reconnais avoir pris connaissance de la  politique de confidentialité et des conditions de respect de la Vie Privée

Vos coups de coeur