









Découvrez ce superbe appartement entièrement rénové situé au 1er étage d’une résidence calme équipée d’un ascenseur :
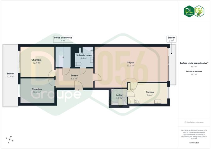
Au 1er étage : Hall d’entrée desservant une belle pièce de vie de 44m2 composé d’un séjour (salon et salle à manger) ainsi que d’une cuisine équipée (plaque de cuisson au gaz, hotte, four, double évier et rangements intégrés), une pièce de service attenante à la cuisine. De plus une première terrasse.
Le hall de. Nuit dessert également 2 belles chambres à coucher de 13m2 et 10m2 dont 1 avec une terrasse couverte exposée « SUD-EST », une salle de bains composée d’une douche à l’italienne, d’un meuble lavabo simple vasque, un WC suspendu, d’un sèche-serviette, un espace de rangement ainsi qu`une pièce supplémentaire avec la chaudière.
Caractéristiques :
Bel appartement rénové, proche de toutes commodités (écoles, transports en communs, commerces, axes routiers, hôpital, …), chauffage central au gaz avec chaudière à condensation individuelle de la marque « Vaillant » neuve (installée en 2025), châssis en aluminium/PVC double vitrage, carrelage dans l`entièreté de l`appartement, parlophone, résidence équipée d’un ascenseur, excellent PEB B, électricité conforme jusqu’en 2046. TOP PRODUIT !
Publicité à caractère non contractuel et ne constituant pas une offre.
Les propriétaires se réservent le droit de décision, d’acceptation ou non sur toute(s) offre(s) soumise(s) pour leur bien.
calme, central
Boutiques : oui
Transport en commun : oui
Ecoles : oui
Salle de Sport : oui
Autoroute : oui
Du jardin : sud est
De la terrasse : sud-est