











Découvrez ce bâtiment exceptionnel au potentiel énorme, idéal pour ceux qui souhaitent allier vie privée et activité professionnelle.
Situé dans une rue commerçante à forte visibilité et passage, ce bien offre tout le confort nécessaire pour vivre et travailler en toute sérénité.
Le rez-de-chaussée comprend un vaste espace commercial, idéal comme showroom, bureau, cabinet ou atelier.
À côté, une grande zone atelier/garage entièrement équipée, avec raccordement triphasé (380V), permet de travailler avec tout type d’équipement professionnel.
À l’avant, trois emplacements de parking privés offrent un confort supplémentaire pour vos clients ou visiteurs.
Un atout majeur pour tout indépendant ou artisan à la recherche d’un lieu fonctionnel et bien situé !
L’espace de vie a été rénové en profondeur en 2015 avec des matériaux de haute qualité :
sols en pierre naturelle, triple vitrage et volets roulants électriques, garantissant une isolation et un confort optimal.
L’aménagement comprend :
Une cuisine entièrement équipée avec électroménagers modernes
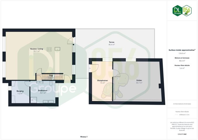
Un espace de vie chaleureux et lumineux
Deux grandes chambres
Une salle de bain entièrement équipée avec buanderie attenante
Un grenier spacieux au-dessus de l’atelier, doté d’un système de levage pour le stockage de matériel lourd
Une terrasse orientée sud-ouest vous permet de profiter du soleil tout au long de la journée.
Le bien dispose de 15 panneaux solaires, offrant une réduction notable des coûts énergétiques.
En outre, le propriétaire bénéficie encore des certificats verts, un avantage financier supplémentaire et un geste pour un avenir plus durable.
Un bien unique et polyvalent, parfait pour vivre, travailler ou investir.
Grâce à son emplacement stratégique, son aménagement spacieux et sa finition de qualité, c’est une opportunité rare pour toute personne à la recherche d’un espace de vie et de travail combiné.
central, commerce
Boutiques : oui
Transport en commun : oui
Ecoles : oui
Salle de Sport : oui
Autoroute : oui
Du bâtiment : ouest
De la terrasse : sud-ouest