











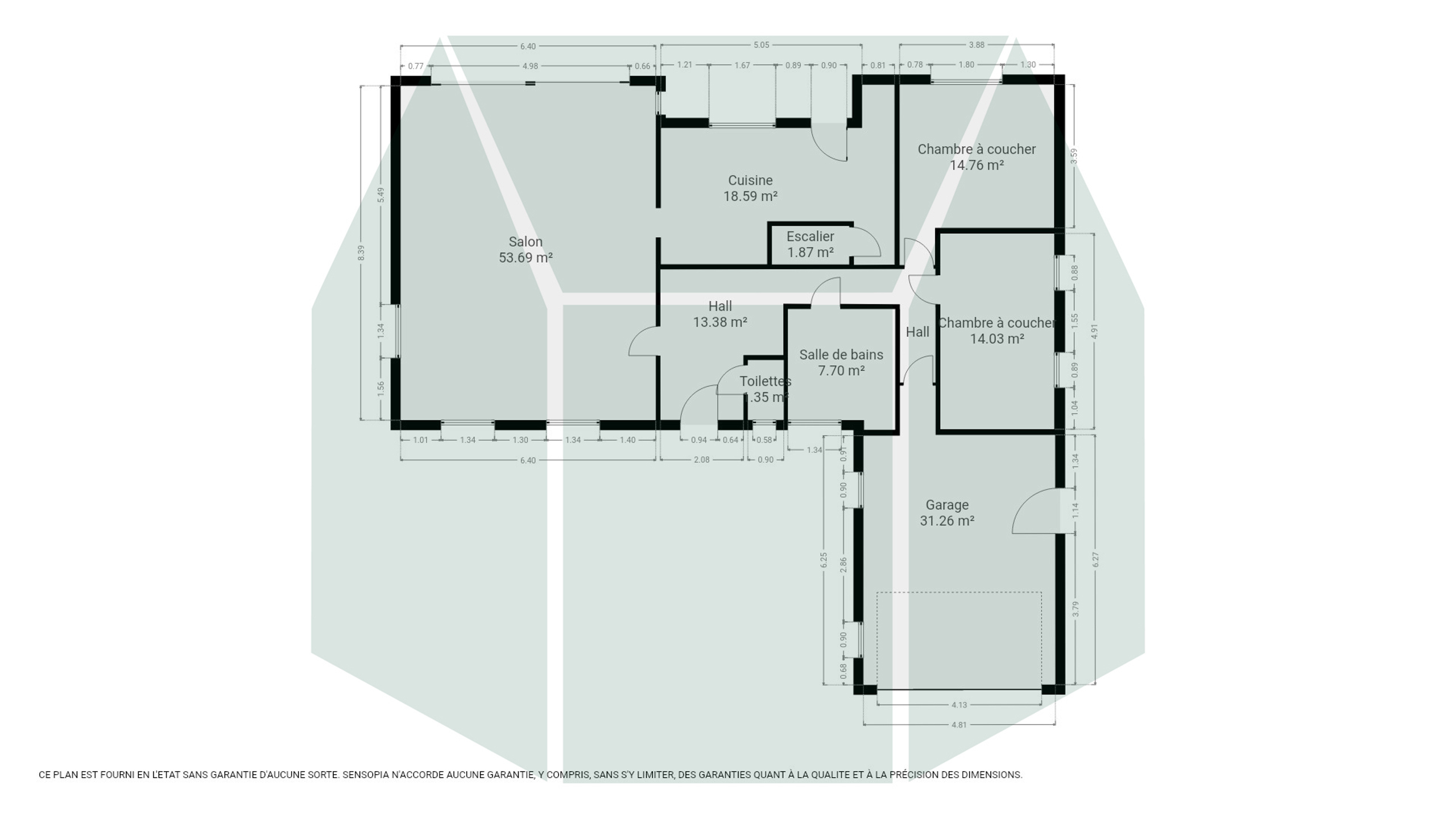
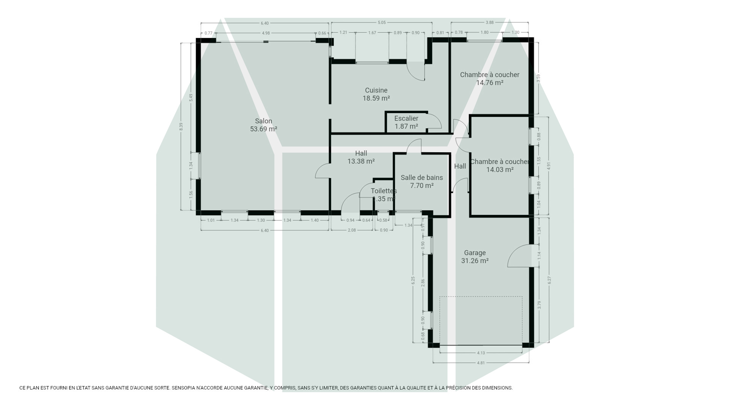
Au REZ : Hall d’entrée avec espace vestiaire, un spacieux et lumineux séjour de 54m2 (salon et salle à manger) agrémenté d’un superbe insert au bois, une cuisine équipée attenante. Le hall de nuit dessert 2 chambres à coucher de 15m2 et 14m2, une salle de bains composée d’une baignoire, d’une douche, d’un meuble lavabo double vasque, un WC séparé. De plus, cet étage dessert un garage pour 1 voiture avec espace chaufferie et buanderie. Le garage offre également un accès directement à l’extérieur. Une cave saine.
L’extérieur ne manquera pas de vous séduire avec sa parcelle totale de 2.170m2 avec une grande terrasse carrelée, un jardin clôturé et arboré exposé « SUD-EST », des passages latéraux ainsi que des places de parking privatives en façade.
Caractéristiques :
Villa de type « Plain-pied » offrant de beaux volumes, proche de toutes commodités (écoles, transports en communs, commerces, axes routiers, …), chauffage central au mazout avec cuve aérienne de 1.500L, châssis en bois double vitrage avec persiennes, carrelage intégral au REZ, parquet dans les chambres, adoucisseur d’eau.
Publicité à caractère non contractuel et ne constituant pas une offre. Les propriétaires se réservent le droit de décision, d’acceptation ou non sur toute(s) offre(s) soumise(s) pour leur bien.
central, calme
Boutiques : oui
Transport en commun : oui
Ecoles : oui
Salle de Sport : -
Autoroute : oui
Du bâtiment : sud-est
Du jardin : sud est
De la terrasse : sud-est