











Immeuble mixte avec surface commerciale et appartement triplex – Situation exceptionnelle en plein centre de Tournai !
Idéalement situé en plein cœur de la ville, cet immeuble allie à merveille activité professionnelle et confort résidentiel.
Rez-de-chaussée :
Vous serez séduit par une magnifique surface commerciale bénéficiant d’une belle visibilité. À l’arrière, une remise pratique ainsi qu’une cave complètent cet espace.
1er étage :
L’appartement triplex débute par un salon chaleureux, suivi d’une cuisine équipée moderne, ouverte sur une salle à manger baignée de lumière naturelle grâce à un puit de lumière. Une agréable terrasse sans vis-à-vis vous offre un véritable coin de détente en extérieur.
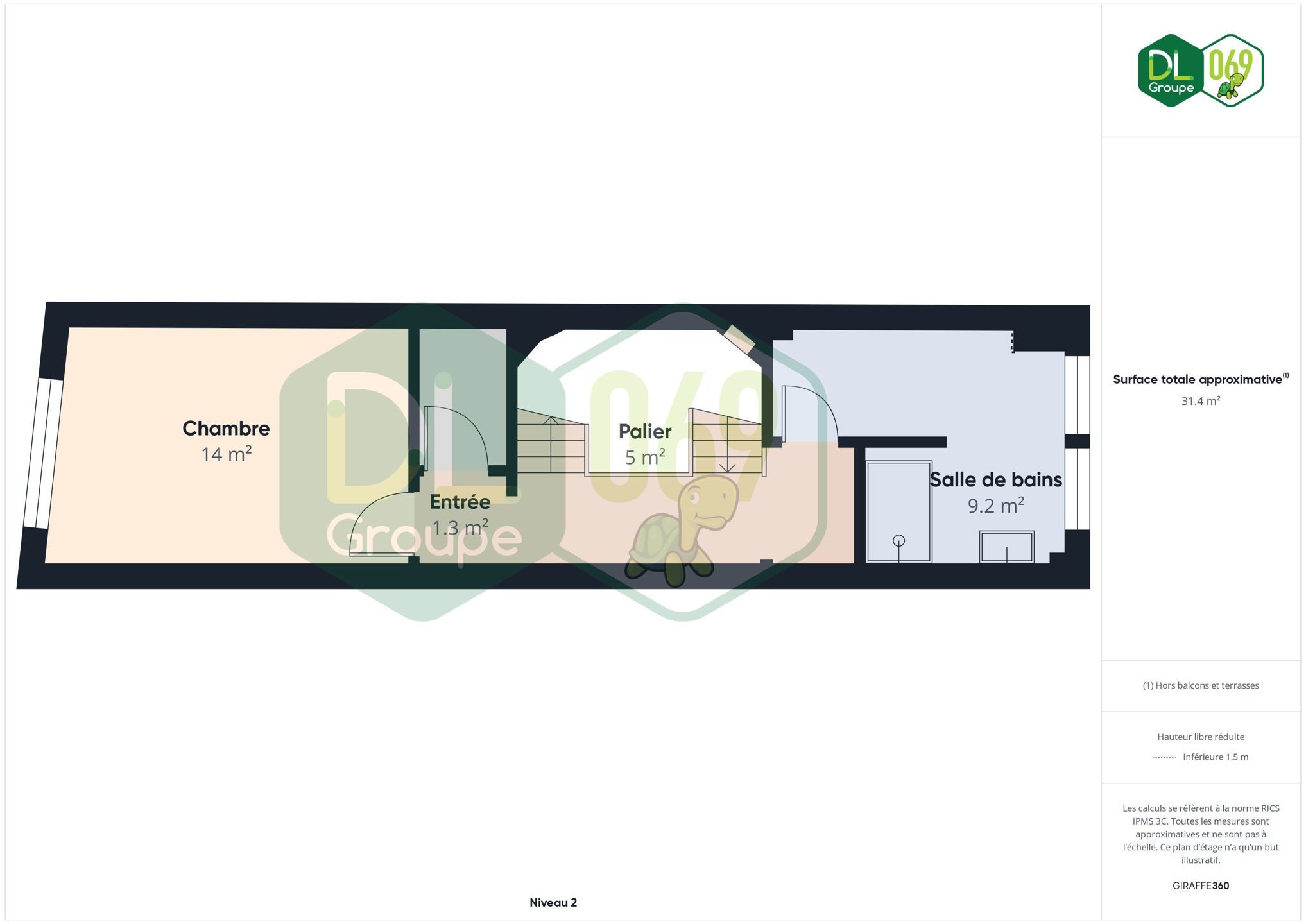
2ème étage :
On retrouve une chambre spacieuse, ainsi qu’une salle de douche fonctionnelle.
3ème étage :
Cet étage propose une seconde grande chambre, une pièce polyvalente pouvant servir de bureau ou de dressing, ainsi qu’un grenier de rangement.
Caractéristiques : Appartement actuellement loué 700€/mois + loyer escompté de 450€/mois pour le rez-commercial, PEB B, chauffage central au gaz (chaudière récente), châssis en PVC double vitrage, cuisine équiée, toiture isolée au plancher, tout à l`égout, 2 compteurs d`eau, 2 compteurs électrique, 1 compteur gaz, béton entre les niveaux.
Plus d`infos sur notre site Internet : www.dlgroupe.com
Publicité à caractère non contractuel et ne constituant pas une offre.
Les propriétaires se réservent le droit de décision, d`acceptation ou non sur toute(s) offre(s) soumise(s) pour leur bien.
centre ville,
Boutiques : oui
Transport en commun : oui
Ecoles : oui
Salle de Sport : oui
Autoroute : oui