











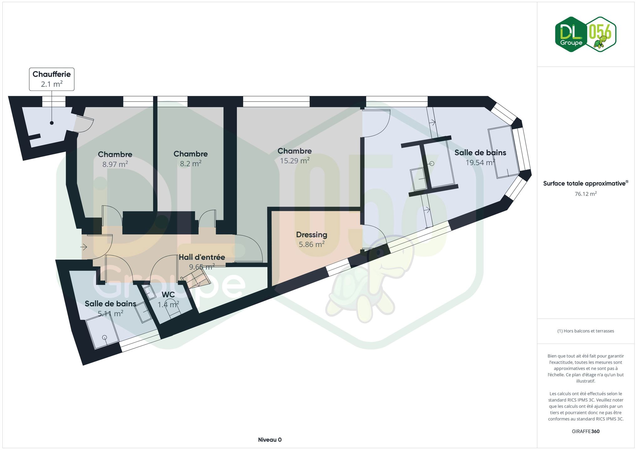
Au 1er étage : Hall desservant 2 chambres à coucher de 9m2 et 8m2, une salle de bains composée d’une douche, d’un meuble lavabo et d’un coin buanderie, un WC séparé avec lave-mains, une superbe suite parentale composée d’une chambre à coucher de 15m2, une salle de bains composée d’une baignoire, d’une douche à l’Italienne, d’un meuble lavabo et d’un sèche-serviette, un dressing vient compléter cet étage.
Au 2ème étage : Une pièce de vie entièrement ouverte baignée de lumière développant +/- 40m2 composée d’un séjour (salon et salle à manger), une cuisine équipée (plaque de cuisson, hotte, four, micro-ondes, double évier, lave-vaisselle, frigo, congélateur, ilot central et nombreux rangements), une immense terrasse en bois de 45m2 parfaitement exposée « SUD-OUEST » !
Caractéristiques :
Bel appartement DUPLEX idéalement situé dans le centre de Mouscron (entre la gare et la Grand-Place), proche de toutes commodités (écoles, transports en communs, commerces, axes routiers, …), chauffage central au gaz avec chaudière à condensation de la marque « Vaillant », châssis en PVC double vitrage, spots intégrés, parlophone, électricité conforme jusqu’en 2039, TOP PRODUIT offrant de beaux volumes !
Publicité à caractère non contractuel et ne constituant pas une offre.
Les propriétaires se réservent le droit de décision, d`acceptation ou non sur toute(s) offre(s) soumise(s) pour leur bien.
central, centre ville
Boutiques : oui
Transport en commun : oui
Ecoles : oui
Salle de Sport : -
Autoroute : oui
De la terrasse : sud-ouest