




Studio lumineux de 33 m² avec garage – Proche de toutes commodités
Description :
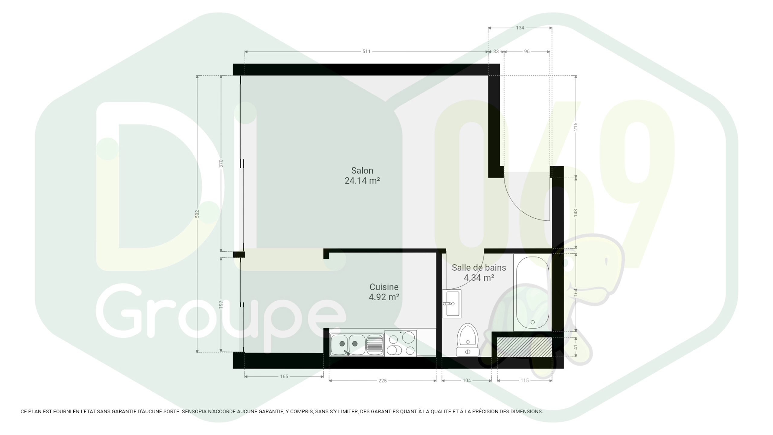
Idéalement situé, ce studio fonctionnel propose une belle pièce de vie de 22 m², une cuisine indépendante, une salle de bain équipée (baignoire, lavabo et WC) ainsi qu`un espace de rangement pratique. Parfait pour un premier achat ou un investissement locatif actuelement loué à 400 €.
Caractéristiques :
Chauffage central avec chaudière collective, châssis en aluminium double vitrage, garage, installation électrique conforme, Charges de 166 €/mois comprenant ; gaz, eau, commun, assurance et entretien des communs, rentabilité escompté après travaux 6,21%.
Points forts :
Studio lumineux et bien agencé
Proximité immédiate des commerces et services
Excellent potentiel location
Plus d’infos sur notre site Internet : www.dlgroupe.com
Publicité à caractère non contractuel et ne constituant pas une offre.
Les propriétaires se réservent le droit de décision, d’acceptation ou non sur toute(s) offre(s) soumise(s) pour leur bien.
résidentiel, calme
Boutiques : oui
Transport en commun : oui
Ecoles : oui
Salle de Sport : oui
Autoroute : oui
De la terrasse : ouest