*** VENDU ***A vendre

Maison Brunehaut rongy

190 000€

En quelques mots

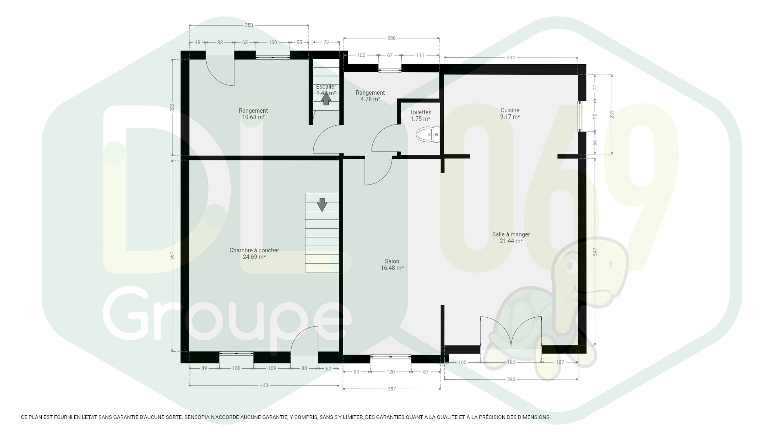
Spacieuse maison 4 façades actuellement en maison de commerce – jardin et fort potentiel Description : Nous entrons dans un grand séjour de 38 m² avec cuisine ouverte de 9 m² (mobilier de cuisine non inclus dans le prix de vente), une arrière cuisine avec WC séparé, une buanderie ainsi qu`une belle chambres de 25 m². À l’étage, un grenier de 45 m² avec possibilité de faire [..]

Spacieuse maison 4 façades actuellement en maison de commerce – jardin et fort potentiel

Description : Nous entrons dans un grand séjour de 38 m² avec cuisine ouverte de 9 m² (mobilier de cuisine non inclus dans le prix de vente), une arrière cuisine avec WC séparé, une buanderie ainsi qu`une belle chambres de 25 m².

À l’étage, un grenier de 45 m² avec possibilité de faire deux chambres.

Extérieur : Un passage latéral mène à un jardin entièrement clos agrémenté d’une terrasse arrière, tandis qu’un grand parking en façade assure une excellente visibilité et facilite le stationnement.

Caractéristiques : Toiture isolée en laine de verre, châssis bois double vitrage, chauffe-eau électrique, nouveau compteur électrique intelligent, électricité conforme, rapport des pompiers à jour, chauffage central au mazout, fosse septique raccordée au tout-à-l’égout, possibilité d`acquérir le mobilier de cuisine.

Points forts : Maison entretenue et modernisée en continu, fort potentiel d’aménagement grâce au grenier aménageableardin et terrasse, parking spacieux, installations aux normes (électrique, incendie)

Plus d’infos sur notre site Internet : www.dlgroupe.com
Publicité à caractère non contractuel et ne constituant pas une offre.
Les propriétaires se réservent le droit de décision, d’acceptation ou non sur toute(s) offre(s) soumise(s) pour leur bien.

Lire plus

Situation

  • Adresse : Brunehaut rongy

Détails

  • Ref : 6767529
  • Type : Maison/Villa
  • Prix : 190 000€
  • Chambre(s) : 2
  • Etat général : Bon état
  • Cuisine : séparée
  • RC : 403€
  • Chauffage : mazout (chauf. centr.)

  • Habitation de 146m2
  • Terrain de 510m2
  • Jardin de 260m2
  • 4 façades

Energies

  • Conso Spécifique 371 KwH/m².an
  • Conso théorique totale 64255 KwH/an
  • N° cert. 20250422026053
  • Electricité oui, conforme

A proximité

Environnement

calme,

Commodités

Boutiques : -

Transport en commun : -

Ecoles : -

Salle de Sport : -

Autoroute : -

Orientation

Envoyer à un ami

*Aucune information n'est enregistrée sur ce formulaire

  • DL Groupe - Tournai 069
  • +32 69 66 56 56
  • Boulevard du Roi Albert 44 - 7500 Tournai
Agence tournai

Je veux visiter

Je suis déjà propriétaire d'un bien
Je reconnais avoir pris connaissance de la  politique de confidentialité et des conditions de respect de la Vie Privée

Vos coups de coeur