











Bâtiment mixte actuellement exploité en tant que restaurant, parfaitement situé sur un axe important à proximité de la Flandres et de la France !
Immeuble avec énormément de charme et de cachet offrant un énorme potentiel d’exploitation : Restauration, centre d’esthétique/coiffure, magasin (décoration, fleuriste…) … Grande facilité de stationnement, extérieur exploitable, parfait pour votre projet professionnel, habitation au 1er étage ! RARE à la vente !
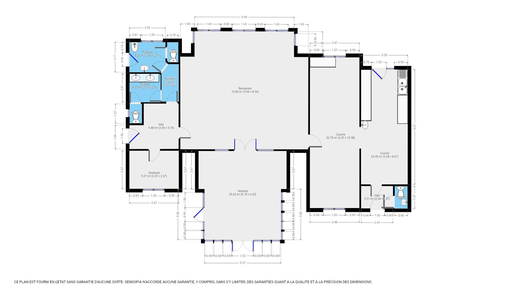
Surface RDC : 208 m²
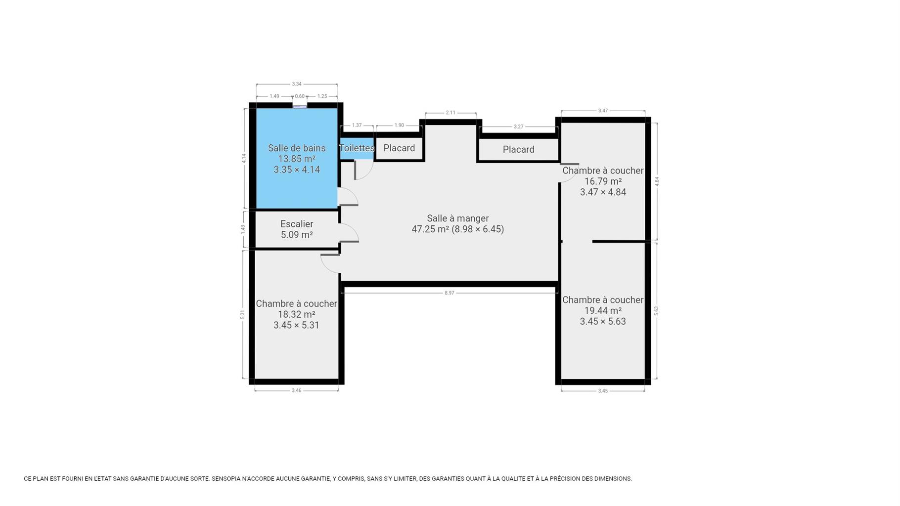
Surface 1er étage : 175 m²
Pour exploitation en tant que restaurant : Bienvenue au « Le Petit Boclé », une adresse incontournable dans le Grand Mouscron et ses alentours. Rencontrant un succès depuis plus de 20 ans, sa renommée et son professionnalisme n’est plus à démontrer. Le Petit Boclé vous accueille dans un cadre verdoyant, à l’abri des regards, travaillant sur une cuisine française raffinée avec des produits frais de qualités, un restaurant gastronomique en toute intimité. Idéal pour une détente culinaire entre amis, en couple, ou encore pour diverses occasions (repas de famille, réceptions, banquets, repas d’affaire, …).
Composition :
Hall d’entrée, espace vestiaire, toilettes clientèles, une grande surface de 70 m², une imposante véranda considérée comme ‘orangerie’ de 36 m², un espace cuisine avec une chambre froide, une cave saine idéale pour stockage, une terrasse exploitable avec vue sur le jardin
A l’étage, un logement privatif avec séjour, cuisine, SDB, 3 chambres. Idéal pour les propriétaires ou pour le personnel.
Extérieur : places de parking, garage.
Caractéristiques :
Chauffage central au mazout (RDC) et chauffage central au gaz (1er étage), citerne d’eau de pluie, verrière refaite en 2000.
Publicité à caractère non contractuel et ne constituant pas une offre.
Les propriétaires se réservent le droit de décision, d`acceptation ou non sur toute(s) offre(s) soumise(s) pour leur bien.
central, central
Boutiques : -
Transport en commun : -
Ecoles : -
Salle de Sport : -
Autoroute : -
Du jardin : sud
De la terrasse : sud