











Vous recherchez un bien à rénover offrant un fort potentiel et une situation stratégique ? Cette spacieuse maison est faite pour vous ! Idéalement située à proximité de la gare de Tournai, du centre-ville et des grands axes, elle allie praticité et potentiel de personnalisation.
Composition du bien :
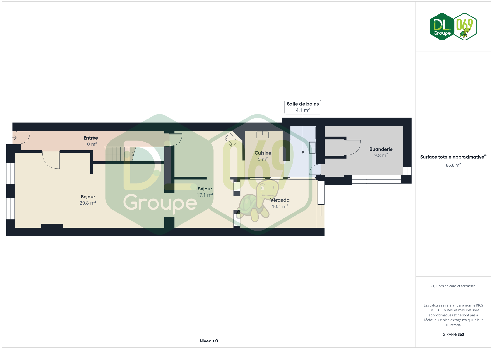
Au rez-de-chaussée : un hall d`entrée desservant un vaste séjour lumineux de 35 m², une véranda offrant une belle vue et un accès direct sur le jardin, une cuisine avec un coin repas, une salle de bain, et une pièce de rangement pratique.
Au 1er étage : un hall de nuit desservant une chambre principale de 20,70 m² et une seconde chambre de 13,27 m².
Au 2e étage : un espace détente/loisir de 24 m² et une troisième chambre de 9,50 m².
Sous-sol : plusieurs caves saines, parfaites pour le rangement ou l’aménagement d’espaces utilitaires.
À l`extérieur : un jardin clôturé, orienté à l’est.
Caractéristiques techniques : feu au gaz, châssis en simple et double vitrage, compteur électrique bihoraire, raccordement au tout-à-l’égout, revenu cadastral : 602 €.
Points forts :
Cette maison est parfaite pour les amateurs de rénovation souhaitant créer un espace de vie à leur image. Sa localisation privilégiée près des commodités et son espace généreux en font un investissement intéressant.
Visite Virtuelle : https://tour.giraffe360.com/58ef938f5acb4c4199e572b6f924a1c9
N’attendez plus pour découvrir ce bien plein de potentiel ! Contactez-nous pour organiser une visite.
Plus d`infos sur notre site Internet : www.dlgroupe.com
Publicité à caractère non contractuel et ne constituant pas une offre.
Les propriétaires se réservent le droit de décision, d`acceptation ou non sur toute(s) offre(s) soumise(s) pour leur bien.
calme, central
Boutiques : oui
Transport en commun : oui
Ecoles : oui
Salle de Sport : -
Autoroute : oui
Du bâtiment : est
Du jardin : est