











Découvrez cette magnifique maison située en plein cœur de Mouscron, une véritable perle au sein de la ville. Cette propriété, construite en 2011 allié élégance, confort et fonctionnalité dans un cadre central idéal.
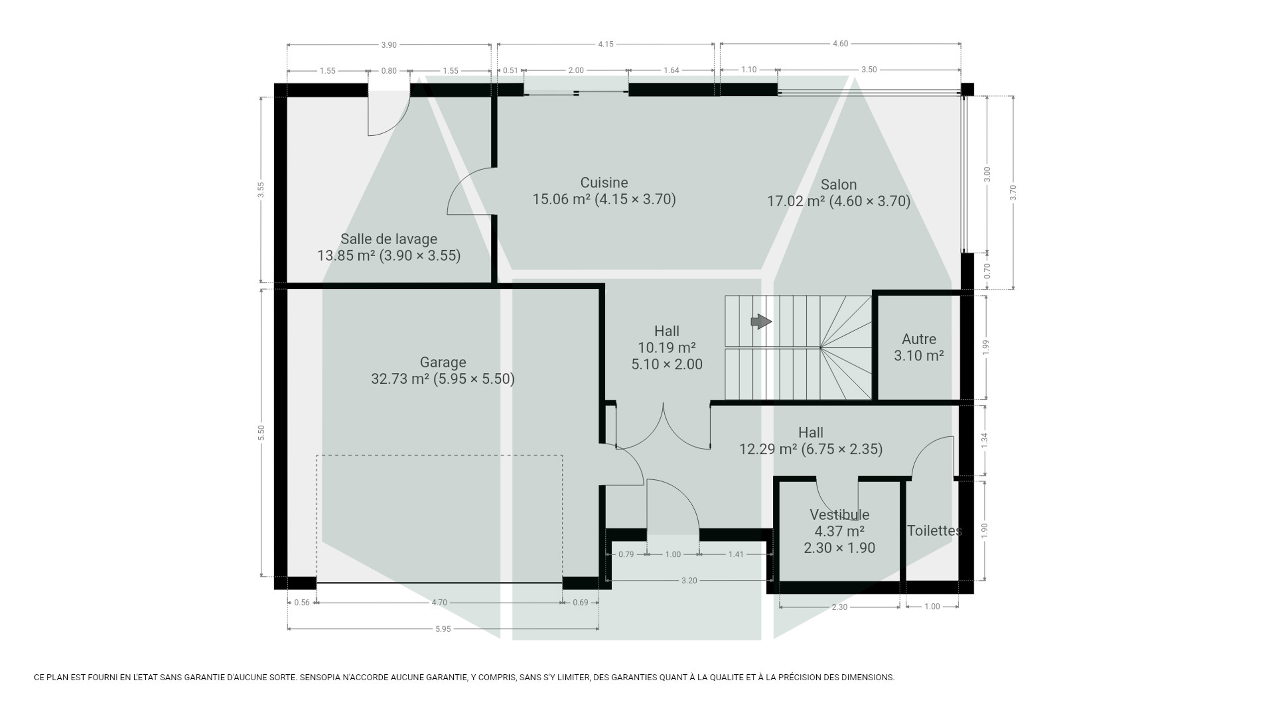
Au rez-de-chaussée, l’entrée vous accueille avec style et élégance. Vous serez immédiatement séduit par la pièce de vie baignée de lumière, dotée d’un superbe escalier flottant qui relie les 3 niveaux de la maison. Cette pièce comprend un salon spacieux ainsi qu’une petite cuisine moderne. De plus, vous trouverez un espace vestiaire pratique, un WC suspendu séparé avec lave-mains, et un garage carrelé pouvant accueillir 2 voitures, équipé d’une borne de recharge. Une buanderie fonctionnelle complète cet étage.
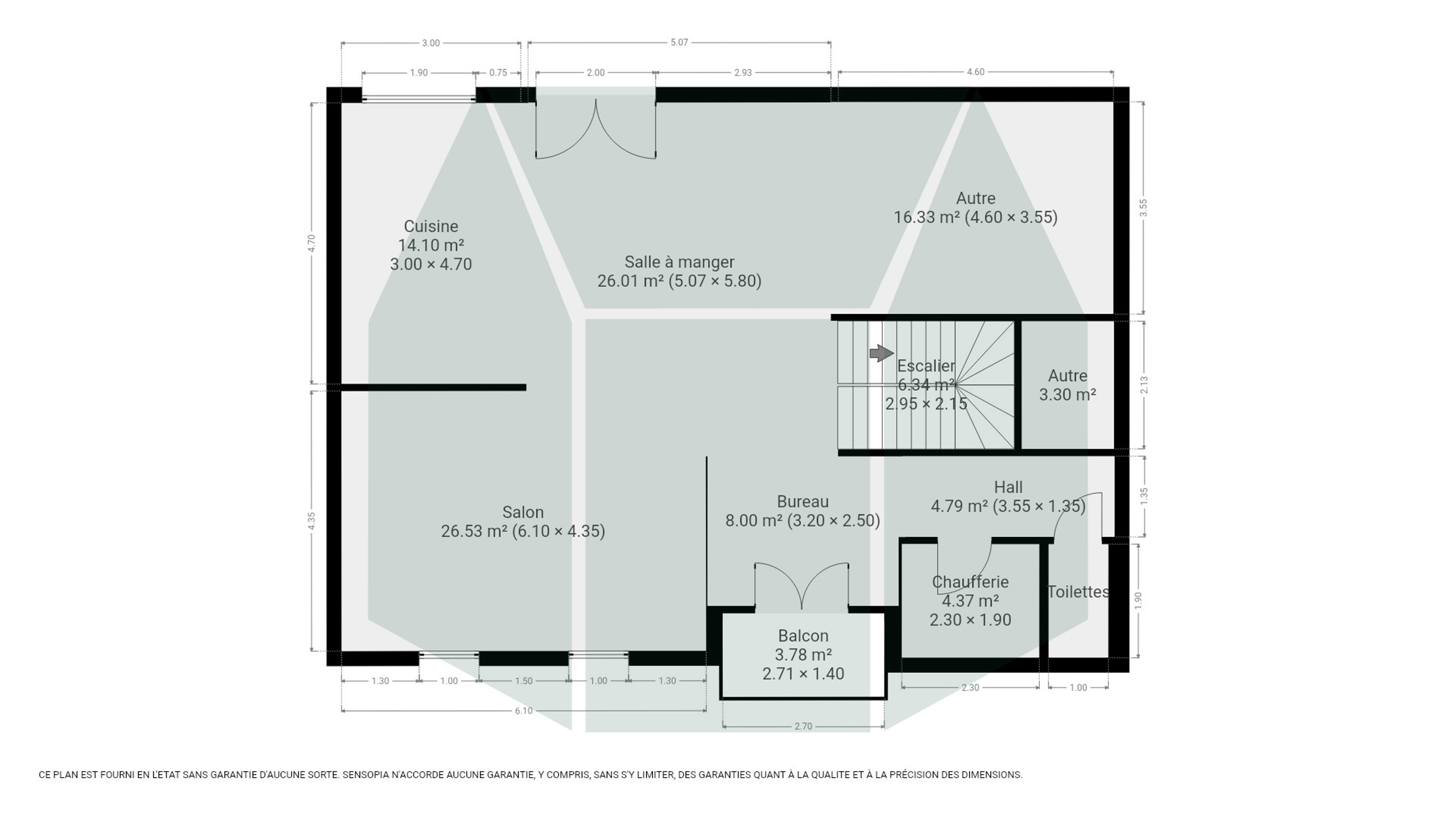
Au premier étage, une vaste pièce de vie s’ouvre à vous, comprenant un espace séjour ainsi qu’une cuisine équipée ouverte. Cette cuisine est équipée d’une plaque de cuisson au gaz, d’une hotte, d’un évier, d’un four, d’un micro-ondes, d’un réfrigérateur, d’un congélateur, d’un lave-vaisselle et d’un coin repas. Un espace bureau est également prévu pour ceux qui travaillant depuis chez eux. De plus, une chaufferie et un WC suspendu ajoutent à la commodité de cet étage.
Le deuxième étage vous réserve une suite parentale de rêve, comprenant une chambre à coucher spacieuse, un dressing et une salle de bains privative. Cette salle de bains est équipée d’une douche à l’italienne, d’une baignoire ainsi que d’un meuble lavabo double vasque. Trois autres belles chambres à coucher et une seconde salle de bains complètent cet étage.
Au troisième étage, un grenier isolé offre un espace de rangement pratique, accessible par un escalier escamotable situé dans le hall de nuit.
A l’extérieur, vous profiterez d’une terrasse en pavés ainsi que d’un jardin clôturé qui vous assure une intimité totale sans aucun vis-à -vis. De plus, un abri de jardin en bois et un passage latéral sécurisé par un portail ajoutent à la fonctionnalité de l’espace extérieur.
Les caractéristiques notables de cette maison incluent le chauffage au sol dans toute la maison (sauf dans les chambres où des radiateurs sont installés), des châssis en aluminium double vitrage avec stores solaires, des Velux en bois double vitrage avec stores occultants, un système d`alarme et d`incendie, une citerne d`eau de pluie de 15 000 litres, un système de VMC double flux, et la possibilité d`installer un ascenseur pour un confort maximal.
Ne manquez pas cette opportunité exceptionnelle de posséder une maison de qualité supérieure au cœur de Mouscron, à proximité de toutes les commodités, écoles, transports en commun, commerces et axes routiers. Cette propriété est un véritable coup de cœur, avec des matériaux haut de gamme qui en font un produit exceptionnel. N`hésitez pas à la visiter pour découvrir tout ce qu`elle a à offrir !
central, centre ville
Boutiques : oui
Transport en commun : oui
Ecoles : oui
Salle de Sport : -
Autoroute : oui
Du bâtiment : sud-ouest
Du jardin : sud ouest
De la terrasse : sud-ouest