Fermette avec vue sur Mont-St-Aubert, exposition sud-ouest !A vendre

Ferme Tournai mont-saint-aubert

475 000€

En quelques mots

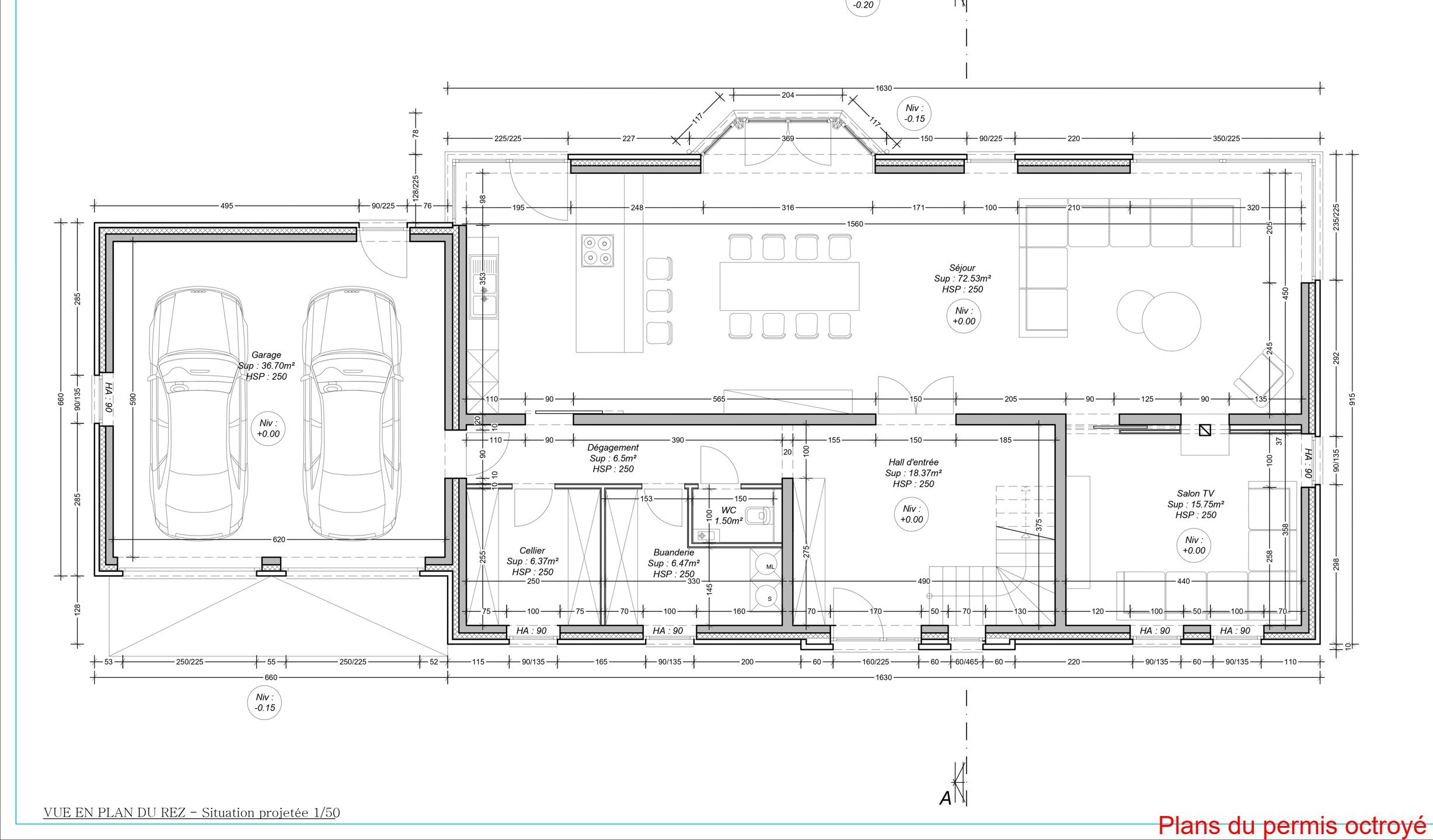
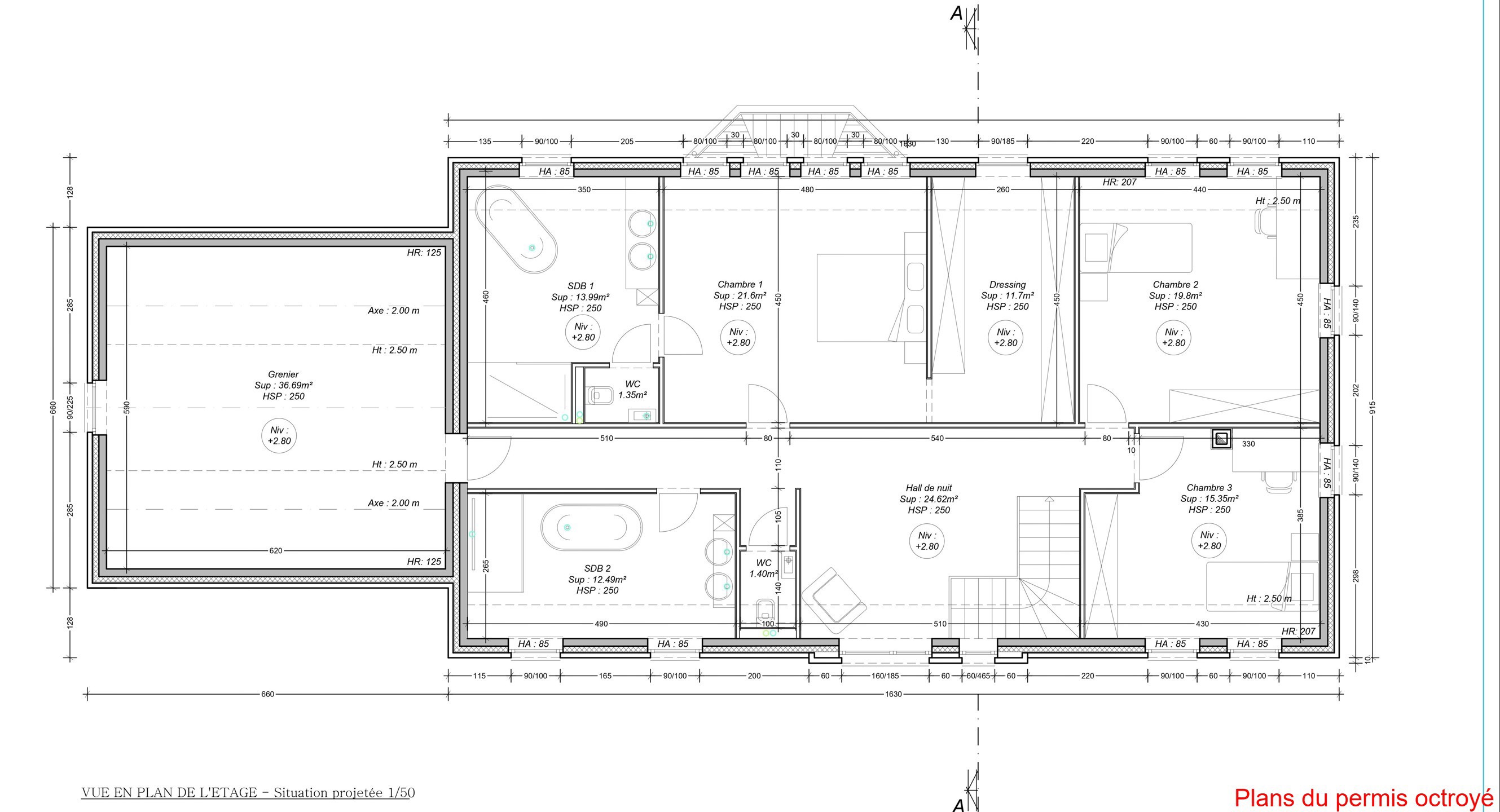
Ferme à rénover ou à reconstruire sur une parcelle de +/- 12.533m² située à Molembaix (Celles) en zone agricole.Elle bénéficie d`une situation au calme et d`une vue imprenable sur le Mont-Saint-Aubert.Un permis est été octroyé pour la démolition de la ferme existante et la construction d`une habitation unifamiliale en lieu et place du hangar.Possibilité d`acquérir en option un [..]
Ferme à rénover ou à reconstruire sur une parcelle de +/- 12.533m² située à Molembaix (Celles) en zone agricole.
Elle bénéficie d`une situation au calme et d`une vue imprenable sur le Mont-Saint-Aubert.

Un permis est été octroyé pour la démolition de la ferme existante et la construction d`une habitation unifamiliale en lieu et place du hangar.

Possibilité d`acquérir en option un hectare attenant.

Plus d`informations sur demande en agence ou par téléphone au +32 478 78 25 16.

Publicité à caractère non contractuel et ne constituant pas une offre.
Les propriétaires se réservent le droit de décision, d`acceptation ou non sur toute(s) offre(s) soumise(s) pour leur bien.
Lire plus

Situation

  • Adresse : Tournai mont-saint-aubert

Détails

  • Ref : 7068337
  • Type : Maison/Villa
  • Prix : 475 000€
  • Chambre(s) : 3
  • Etat général : À démolir
  • Salle de bain : 1
  • Garage(s): 0 + 1
  • Cuisine : équipée
  • Chauffage : pellets

  • Terrain de 12533m2
  • Jardin de 12533m2
  • 4 façades

Energies

  • Conso théorique totale 42975 KwH/an
  • N° cert. 20190711015952
  • Electricité non

A proximité

Environnement

calme, campagne

Commodités

Boutiques : -

Transport en commun : -

Ecoles : -

Salle de Sport : -

Autoroute : -

Orientation

Du jardin : sud ouest

Envoyer à un ami

*Aucune information n'est enregistrée sur ce formulaire

  • Immo Emeraude Tournai
Agence emeraude

Je veux visiter

Je suis déjà propriétaire d'un bien
Je reconnais avoir pris connaissance de la  politique de confidentialité et des conditions de respect de la Vie Privée

Vos coups de coeur

# Suggestions